Original size 1875x2500

Дизайн-проект городской квартиры. Архитектура тишины и света

PROTECT STATUS: not protected
The project is taking part in the competition

Этот проект — городская квартира для мужчины, чья профессиональная жизнь тесно связана с архитектурой и дизайном. Она задумывалась не как постоянное жилье, а как пространство для работы, восстановления и внутреннего равновесия в городском ритме.

В основе проекта — лаконичность, тактильные натуральные материалы и сдержанная цветовая палитра.

Ключевая идея интерьера — атмосфера, подчиненная функции.

big
Original size 3983x3026

Образы в мудборде передают ощущение собранности, эстетической сдержанности и внутреннего баланса — состояния, в котором пространство становится продолжением характера владельца.

big
Original size 3843x3300

Материальная палитра проекта строится на сочетании камня, дерева и натуральных тканей. Нейтральная база дополнена точечными цветовыми акцентами и латунными деталями.

Планировочные решения разрабатывались с учетом сценариев повседневной жизни и ограниченной площади квартиры. Выбран вариант, в котором удалось сохранить ощущение простора при четком функциональном разделении зон.

0

Варианты планировок

0

Гостиная и спальная зона объединены в единое пространство с четким зонированием, что позволяет сохранить легкость и естественное освещение.

Кухня спроектирована в линейном формате, что позволило компактно собрать и разместить все необходимые функции в одном объеме.

Санузел совмещенный, что позволяет оптимально использовать площадь и разместить все необходимые функции без ощущения тесноты.

Отдельная гардеробная выделена как самостоятельная зона хранения и позволяет сохранить визуальную чистоту интерьера.

Прихожая спроектирована компактной, но функциональной, с отдельной зоной для стиральной и сушильной машины.

Лоджия включена в сценарий использования квартиры как дополнительное функциональное пространство.

Коллажи отражают промежуточный этап работы над проектом — поиск пропорций, композиции и атмосферы будущего интерьера. На этом этапе формируется взаимодействие света, материалов и предметов в пространстве.

0

Коллажи функциональных зон

После этапов поиска и формирования концепции проект переходит в работу с пространством. На визуализациях показано, как выбранные решения — свет, материалы и пропорции — работают в реальном времени.

Гостиная зона — центральное пространство квартиры, вокруг которого выстраивается вся логика интерьера. Именно здесь наиболее точно раскрывается идея проекта, его атмосфера и характер будущего владельца.

Original size 2500x1875

Гостиная воспринимается как тихое, уравновешенное пространство, в котором хочется замедлиться.

Original size 2500x1875

Мягкая светлая мебель, натуральное дерево и приглушенные оттенки создают ощущение уюта и визуального покоя.

Стеклянная перегородка помогает сохранить визуальную целостность пространства и доступ естественного света.

Спальная зона воспринимается как отдельный, приватный блок квартиры, ориентированный на сон и восстановление. Минимум предметов и сдержанная палитра позволяют сосредоточиться на главном сценарии — отдыхе, без отвлекающих деталей.

Original size 2500x1875

Зона спальни логично продолжает общую концепцию квартиры, но при этом остается максимально камерной и спокойной.

Original size 2500x1875

Спальная зона спроектирована с акцентом на вечерние и утренние сценарии, без визуального шума и избыточных элементов.

Акцент сделан на тактильность материалов и мягкое локальное освещение — бра у изголовья формируют камерные сцена для вечернего отдыха.

Кухня спроектирована как компактное, но полностью функциональное пространство с линейной планировкой. Такое решение позволяет сохранить визуальную чистоту интерьера, не перегружая его объемами, при этом вся необходимая техника и рабочие зоны остаются под рукой.

Original size 2500x1875

Кухня становится естественной частью общего пространства, не перетягивая на себя внимание.

Линейная композиция подчеркивает порядок и ритм, а материалы и оттенки поддерживают общее ощущение уюта и собранности.

Original size 2500x1875

Это пространство для повседневных, неторопливых сценариев — завтраков, кофе и тихих вечеров.

Небольшая лоджия трансформирована в функциональную зону отдыха с барной стойкой у панорамного окна. Это место не конкурирует с основными зонами квартиры, а дополняет их — как спокойный сценарий для короткого отдыха, чтения или работы с ноутбуком.

Акцентные стулья и текстуры дерева подчеркивают уют, не перегружая пространство.

Зона выглядит легкой и воздушной оставаясь функциональной.

Прихожая спроектирована как спокойное пространство, задающее ритм всей квартире. Натуральные фактуры дерева и камня, а также мягкая подсветка формируют ощущение порядка и собранности с первого шага.

Вертикальное зеркало с мягкой подсветкой визуально расширяет пространство и усиливает ощущение глубины.

Стиральная и сушильная машины интегрированы в нишу и скрыты текстильной шторы, сохраняя цельность интерьера.

Интерьер санузла построен на архитектурной частоте и минимализме. Цель — создать цельное, спокойное пространство без визуального шума, где материалы и свет задают характер, а форма остается лаконичной.

Санузел воспринимается как цельное архитектурное пространство, а не набор отдельных элементов.

Основной акцент в санузле сделан на натуральные материалы и их фактуру: камень, травертин и латунь.

Гардеробная спроектирована как отдельное функциональное пространство, организованное по принципу симметрии и максимальной вместимости. Открытые системы хранения делают пространство визуально лёгким и удобным в повседневном использовании.

Встроенная подсветка подчеркивает структуру хранения и делает пространство более глубоким.

Натуральные оттенки дерева поддерживают общую концепцию спокойного и тактильного интерьера. Такое решение сочетает эстетику и высокую функциональность.

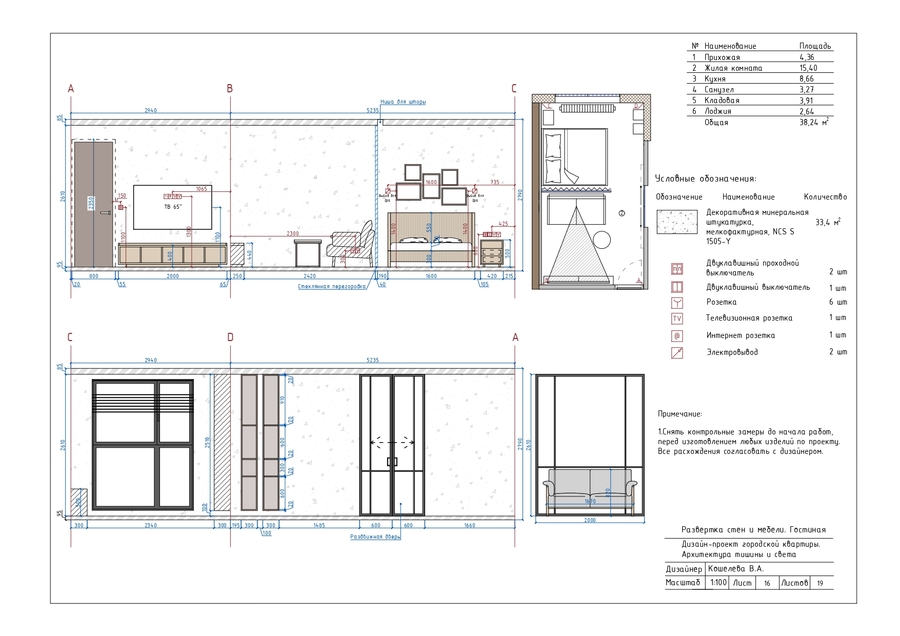
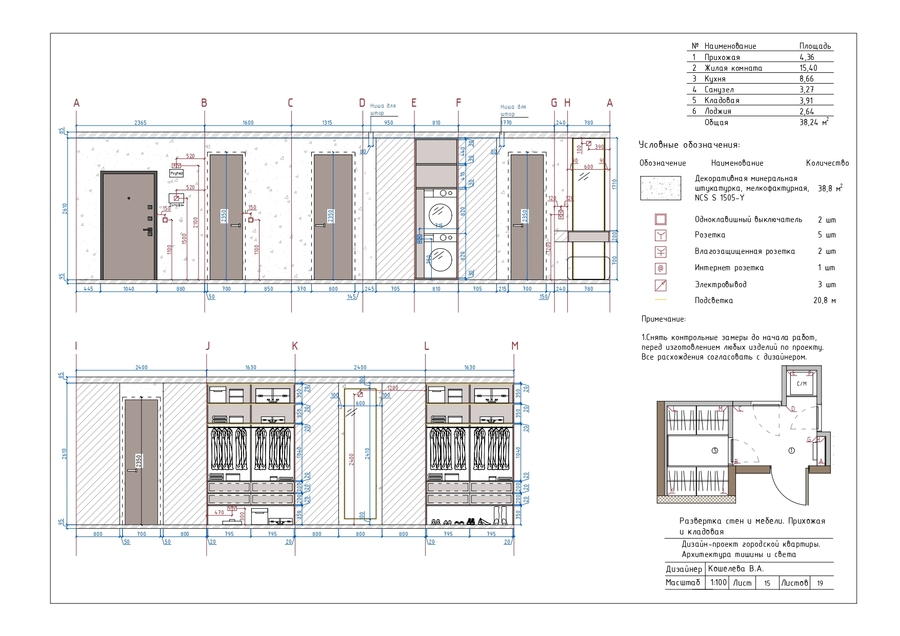
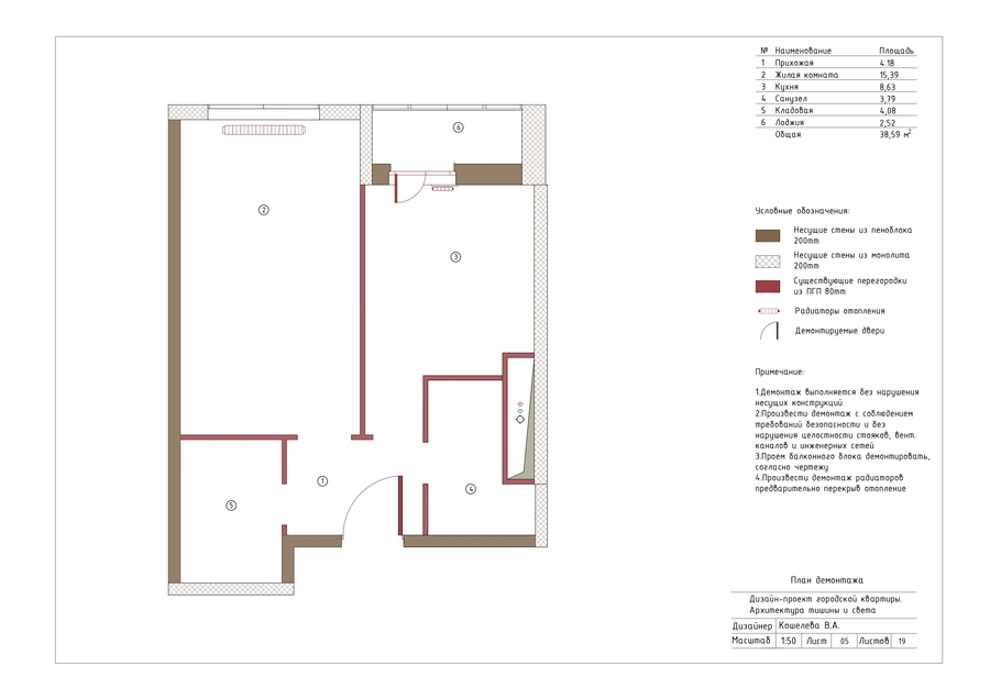
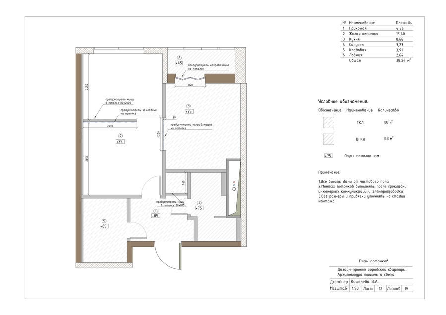
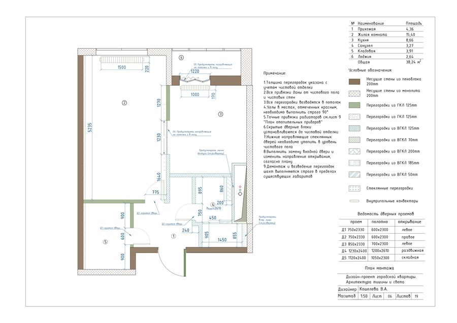
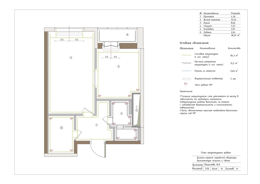
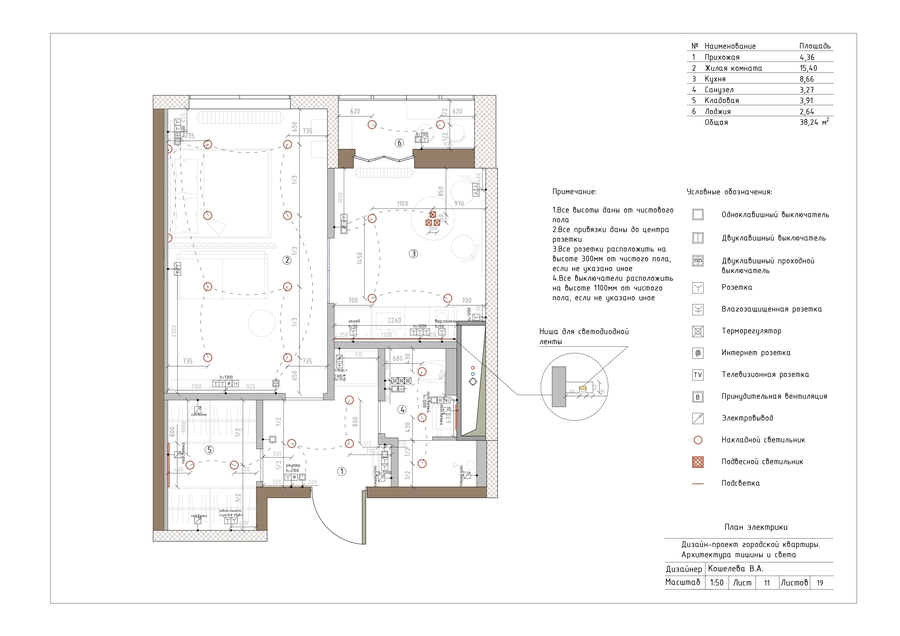
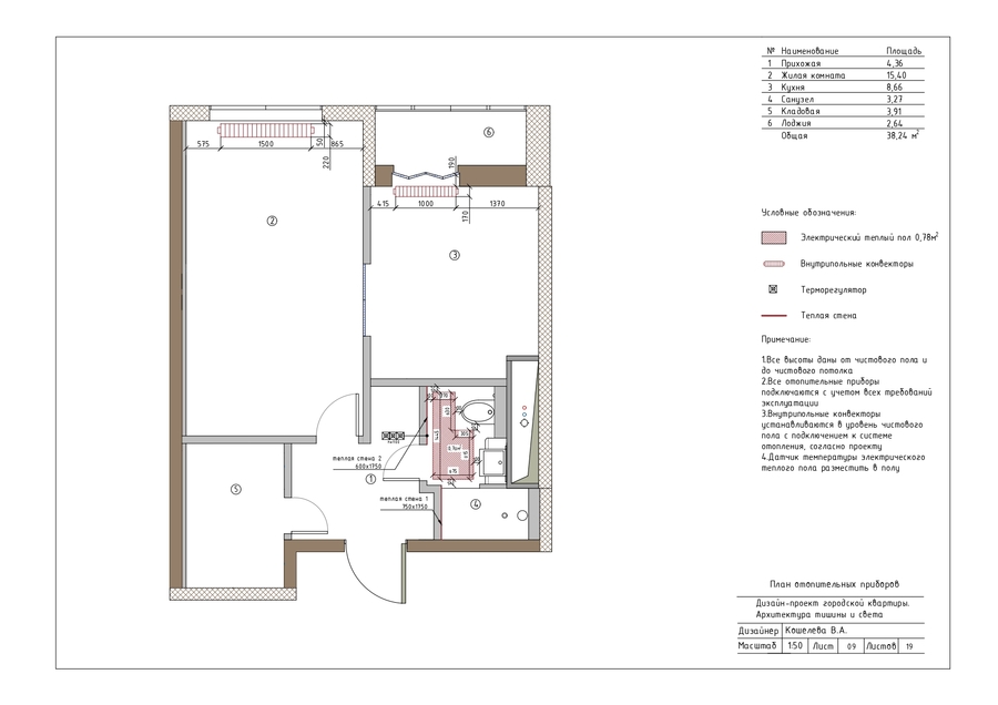
После проработки концепции и визуальных решений представлен альбом рабочих чертежей. Он позволяет наглядно проследить, как выбранная идея интерьера трансформируется в точные и реализуемые проектные решения

0
0