
КОНЦЕПЦИЯ И АНАЛИЗ МЕСТНОСТИ
Ул. Старая Басманная, д 21/4 — корпус НИУ ВШЭ
В историческом районе много музеев, театров, галерей — культурных досуговых мест, достаточно мало помещений для развлечений, необычных мест. Я решила создать учебное научное пространство для работы, при этом играющее роль выставочного и иммерсивного космического пространства, создающее другую современную реальность. Мое молодежное пространство — смесь культурного привычного досуга с современным футуристическим подходом.

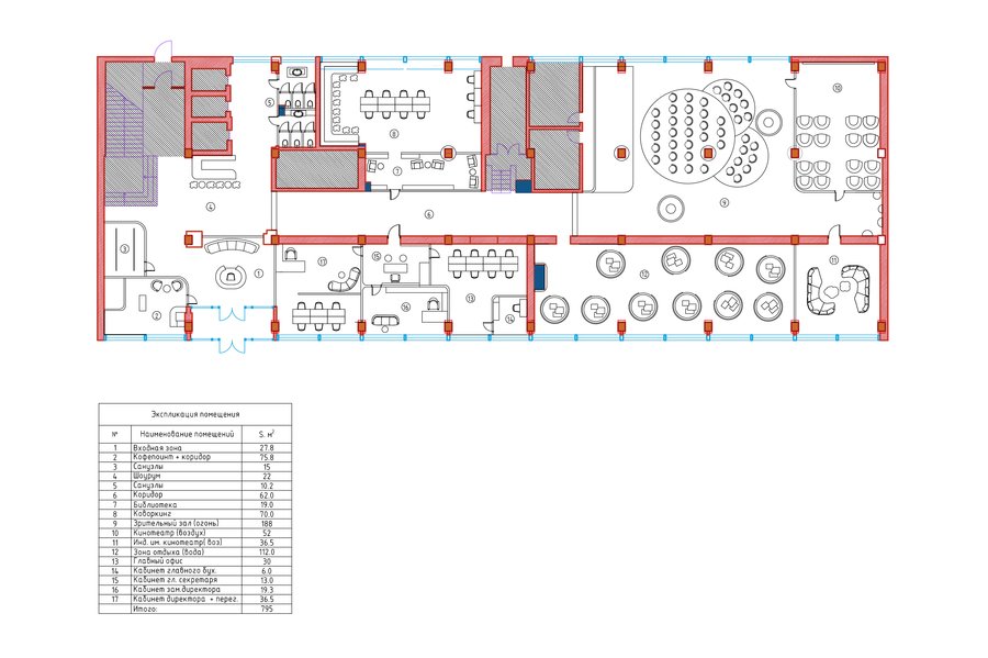
ПЕРЕЧЕНЬ ПОМЕЩЕНИЙ И ЗОН:
· Ресепшн, зона ожидания · Кабинет директора · Кабинет замдиректора · Кабинет секретаря · Переговорная для руководства · Офисы (6-8 рабочих мест) · Шоурум — торговая площадь · Кабинет гл бухгалтера · Архив . Санузлы (в соответствии с исходным планом) · Кофе поинт
ЗЕМНЫЕ ЗНАКИ
ОГНЕНЫЕ ЗНАКИ
ВОДНЫЕ ЗНАКИ
ВОЗДУЩНЫЕ ЗНАКИ
Материалы
Коллаж материалов и элементов
Мудборд
ПЛАНЫ
План расстановки мебели, план функционального зонирования
ВИЗУАЛИЗАЦИИ
Ресепшен, входная зона
Кофепоинт
Коридор
ОФИС
Переговорная
Офис
ЗЕМЛЯ
Коворкинг
ОГОНЬ
Зрительный зал
ВОДА
Зона отдыха
ВОЗДУХ
Иммерсивный кинотеатр