You need to enable JavaScript to run this app.
fashion
.deziiign
competencies
tags
brands
awards
shop
about project
courses
RU
EN
Create project
Login
Roman Starushko
curated by
Dmitriy Bykov
Original size
2480x3500
Shop KARIERE
moscow
interior design
hse museums lab
russia
exhibition space
concept store
themes
exhibition design
shop
3d-environment
architecture
public space
hse art and design school
PROTECT STATUS: not protected
255
244
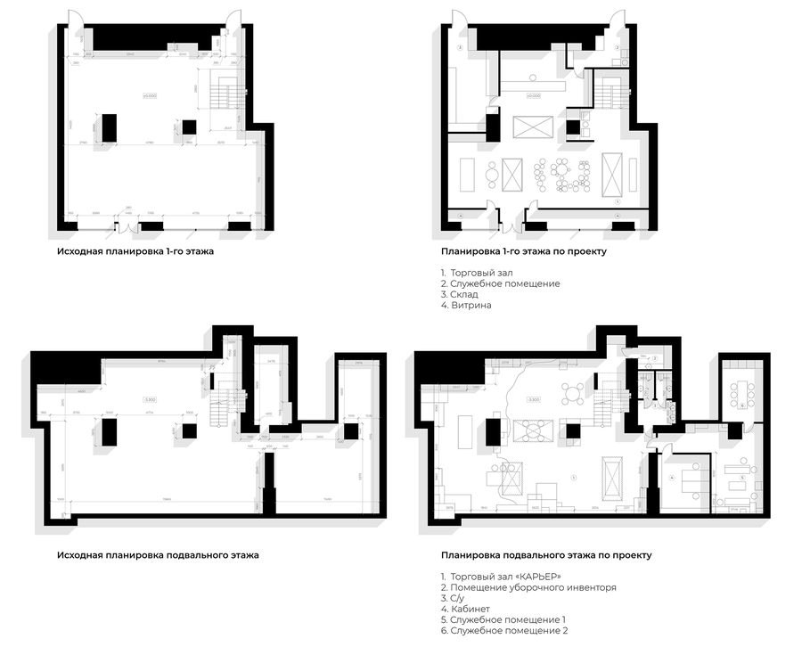
The project is a concept development for a two-level store.
Original size
3098x1743
Original size
3500x2009
Original size
3293x2009
Original size
1876x1514
Upper level
Original size
3500x2009
Original size
3500x2009
Original size
3418x1969
Original size
3500x2009
Original size
3500x2009
Original size
3290x2009
Original size
3500x2009
Lower level
Original size
3290x2009
Original size
3500x2009
Original size
3500x2009
Showcase
Original size
3500x2008
Original size
1920x759
Original size
3392x2009
Shop KARIERE
Roman Starushko
curated by
Dmitriy Bykov
moscow
interior design
hse museums lab
russia
exhibition space
concept store
themes
exhibition design
shop
3d-environment
architecture
public space
hse art and design school
255
244
More projects in
interior design
31
Olga Petrova
45
Anna Karamova
Press space bar to start a drag. When dragging you can use the arrow keys to move the item around and escape to cancel. Some screen readers may require you to be in focus mode or to use your pass through key