
Дизайн витрины выполнен как «автомат-хватайка» — это символизация игры, в которую начинает играть покупатель, когда заходит в концепт-стор и выбирает товар. Понравится всё, что «вытянешь».
Смятые на дне витрины бумажки иллюстрируют поток мыслей, бесконечные идеи, работу авторов над продуктами, из которых «вылезают» готовые результаты труда и творчества.
Цветные треугольники на задней стене создают динамику. Благодаря им витрина выглядит как кадр анимации.
модель SketchUp: ортогональная проекция / изометрия
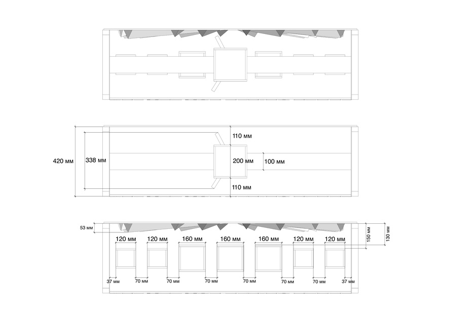
чертежи

визуализация
визуализация в среде. слева: проект Петренко Виктории
Макет. Масштаб 1:2
макет. фронтальный вид
макет
макет. детали
макет. детали
Визуализировано со свечами Алёны Боровой «U ALENUSHKI». Фото взяты со страницы проекта.